New today
Free to contact

- House share £595 pcm
- Drayton View on map
- PO6
Description
Double room available in a spacious 5 bed professional house share in the desirable location of Drayton. Entire floor of communal space including separate lounge, dining area and utility room 🏠.
This professional quality house share that has recently undergone a total refurbishment with high quality furniture and fittings. Beautiful little touches have been added throughout the property including pictures, mirrors, lamps, cushions and plants for that homely feel.
Walking distance to Queen Alexandra Hospital and just a few minutes’ walk to the local shops and restaurants on Havant Road in Drayton.
The property consists of;-
Shared Spaces;-
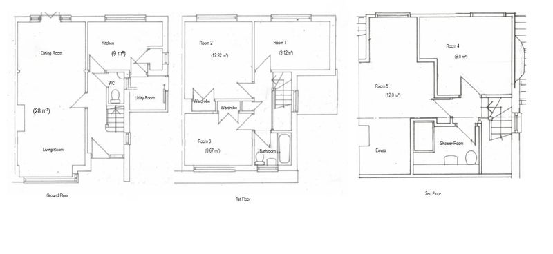
Modern fully integrated kitchen ( 9m² ) - with a separate utility area. Large Range-style cooker with an eight-ring gas hob and electric oven, 1 x fridge/freezer, separate counter height fridge, separate counter height freezer and plenty of cupboard space.
Open Plan Living and dining room ( 28m² ) Fully Furnished with dining table and chairs, 1 x sofa, 2 x armchairs, coffee table, Smart TV. There is also an Electric fire for cold winter nights!
WC on the ground Floor with wash hand basin and mirror – useful for any guests visiting for the day
Bathroom on the 1st floor with a bath, shower over bath, WC and wash hand basin, with heated towel rail.
Shower-room on the 2nd floor with shower cubicle, WC, Wash hand basin and shelving with heated towel rail.
🛌 Available Rooms 🛌 RENT INCLUDES ALL BILLS
⭐Room 5 - £595 PCM ( Measurements 12M² )
Available 4th November: Double Room on the second floor of the property. Fully Furnished with a double bed, chest of drawers, bedside cabinet and lamp.
This Luxury House Share is offered with with all bills inclusive which include
• Fortnightly Cleaner and seasonal gardener
• All Utilities
• Council Tax
• High Speed Wifi
Book a viewing now to avoid disappointment.
No pets, Not Suitable for Families/Children or Couples (Restrictions due to the HMO Licence - Sorry)
___________________________________________
Relevant Letting Fees and Tenant Protection Information
As well as paying the rent, you may also be required to make the following permitted payments:
Before the tenancy starts
- Holding Deposit: Equivalent to 1 week's rent, this will be offset against the first rental payment at the commencement of the tenancy
- Security Deposit: Equivalent to 1 Month's Rent.
During the tenancy
- Changes to the tenancy agreement when requested by the tenant: £50.00
- Payment of interest for the late payment of rent at a rate of 3% above Bank of England Base rate
- Charge for the reasonably incurred costs for the loss of keys/security devices: COST
- Payment of any unpaid rent or other reasonable costs associated with your early termination of the tenancy
Other permitted payments
- Any other permitted payments, not included above, under the relevant legislation including contractual damages.
Tenant Protection
Apex Lettings is a member of CMP Client Money Protect which is a client money protection scheme, and also a member of The Property Ombudsman which is a redress scheme. You can find out more details on our website or by contacting us directly.
Council tax band C - £1,938.59 Annually.
This professional quality house share that has recently undergone a total refurbishment with high quality furniture and fittings. Beautiful little touches have been added throughout the property including pictures, mirrors, lamps, cushions and plants for that homely feel.
Walking distance to Queen Alexandra Hospital and just a few minutes’ walk to the local shops and restaurants on Havant Road in Drayton.
The property consists of;-
Shared Spaces;-
Modern fully integrated kitchen ( 9m² ) - with a separate utility area. Large Range-style cooker with an eight-ring gas hob and electric oven, 1 x fridge/freezer, separate counter height fridge, separate counter height freezer and plenty of cupboard space.
Open Plan Living and dining room ( 28m² ) Fully Furnished with dining table and chairs, 1 x sofa, 2 x armchairs, coffee table, Smart TV. There is also an Electric fire for cold winter nights!
WC on the ground Floor with wash hand basin and mirror – useful for any guests visiting for the day
Bathroom on the 1st floor with a bath, shower over bath, WC and wash hand basin, with heated towel rail.
Shower-room on the 2nd floor with shower cubicle, WC, Wash hand basin and shelving with heated towel rail.
🛌 Available Rooms 🛌 RENT INCLUDES ALL BILLS
⭐Room 5 - £595 PCM ( Measurements 12M² )
Available 4th November: Double Room on the second floor of the property. Fully Furnished with a double bed, chest of drawers, bedside cabinet and lamp.
This Luxury House Share is offered with with all bills inclusive which include
• Fortnightly Cleaner and seasonal gardener
• All Utilities
• Council Tax
• High Speed Wifi
Book a viewing now to avoid disappointment.
No pets, Not Suitable for Families/Children or Couples (Restrictions due to the HMO Licence - Sorry)
___________________________________________
Relevant Letting Fees and Tenant Protection Information
As well as paying the rent, you may also be required to make the following permitted payments:
Before the tenancy starts
- Holding Deposit: Equivalent to 1 week's rent, this will be offset against the first rental payment at the commencement of the tenancy
- Security Deposit: Equivalent to 1 Month's Rent.
During the tenancy
- Changes to the tenancy agreement when requested by the tenant: £50.00
- Payment of interest for the late payment of rent at a rate of 3% above Bank of England Base rate
- Charge for the reasonably incurred costs for the loss of keys/security devices: COST
- Payment of any unpaid rent or other reasonable costs associated with your early termination of the tenancy
Other permitted payments
- Any other permitted payments, not included above, under the relevant legislation including contractual damages.
Tenant Protection
Apex Lettings is a member of CMP Client Money Protect which is a client money protection scheme, and also a member of The Property Ombudsman which is a redress scheme. You can find out more details on our website or by contacting us directly.
Council tax band C - £1,938.59 Annually.
-
£585 pcm(NOW LET) -
£595 pcm(NOW LET) -
£595 pcm(NOW LET) -
£595 pcm(NOW LET) - £595 pcm (double)
Availability
- Available
- 04 Nov 2025
- Minimum term
- 6 months
- Maximum term
- None
Extra cost
- Deposit
- £686.00
- Bills included?
- Yes
Amenities
- Furnishings
- Furnished
- Parking
- Yes
- Garage
- No
- Garden/patio
- Yes
- Balcony/roof terrace
- No
- Disabled access
- No
- Living room
- shared
- Broadband included
- Yes
Current household
- # housemates
- 4
- Total # rooms
- 5
- Smoker?
- No
- Any pets?
- No
- Occupation
- Other
- Gender
- 4 Males
New housemate preferences
- Couples OK?
- No
- Smoking OK?
- No
- Pets OK?
- No
- Occupation
- Available to all
- References?
- Yes
- Min age
- 21
- Max age
- 45
Apex Lettings
agent
Last active: 5 hours ago Response rate: Good
In a hurry? Show interest and we will send the advertiser your profile
Stay safe
TIP: Always view before you pay any money
Ad #17707356
More from the same advertiser
- Luxury Double Room - 50% Off 1st Month's Rent North End from £685 pcm
- 1 Luxury Ensuite Room available now North End from £695 pcm
- 🌞 Large Double in Southsea with Sink 🌞All Male Southsea from £535 pcm
- 💥💫Large Luxury Ensuite Double Room 💫💥 North End from £750 pcm
- Double room with Ensuite In Southsea available NOW Southsea from £695 pcm
- 1 x double room with 🌟 En suite 🌟 North End from £650 pcm
- Extra Large Double room in North End £550 North End from £550 pcm